24 Sarah CourtColumbia, TN 38401
Due to the health concerns created by Coronavirus we are offering personal 1-1 online video walkthough tours where possible.


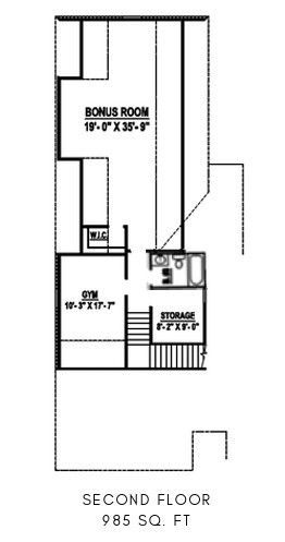
Presale of The Kensington plan Elevation C! Almost all of the living space is on the main floor including 4 bedrooms, office, dining room, and an amazing open kitchen! HUGE kitchen island with pantry. The great room has a vaulted ceiling and gas fireplace. A covered back porch is just off the great room with an additional outdoor fireplace! Primary suite is on the opposite side of the 1st floor from the 3 other bedrooms. The office makes for a great space to work from home as needed! Upstairs has an additional full bathroom, excerise room/media room/office, and a large bonus room located above the 3 car garage! All lots in The Estates at Prince Farms have at least an acre. Contact listing agent for details on this home or other lots available in The Estates at Prince Farms. 15 total lots in Phase 2. Buyers can pick the house plan from the builder's plans and lot based on what is available.
| 5 months ago | Price changed to $1,064,390 | |
| 5 months ago | Listing updated with changes from the MLS® | |
| 5 months ago | Status changed to Active Under Contract | |
| 7 months ago | Listing first seen on site |
Listings courtesy of Realtracs as distributed by MLS GRID
Based on information submitted to the MLS GRID as of 2026-02-01 10:21 AM UTC. All data is obtained from various sources and may not have been verified by broker or MLS GRID. Supplied Open House Information is subject to change without notice. All information should be independently reviewed and verified for accuracy. Properties may or may not be listed by the office/agent presenting the information.
The Digital Millennium Copyright Act of 1998, 17 U.S.C. § 512 (the “DMCA”) provides recourse for copyright owners who believe that material appearing on the Internet infringes their rights under U.S. copyright law. If you believe in good faith that any content or material made available in connection with our website or services infringes your copyright, you (or your agent) may send us a notice requesting that the content or material be removed, or access to it blocked. Notices must be sent in writing by email to [email protected].
The DMCA requires that your notice of alleged copyright infringement include the following information: (1) description of the copyrighted work that is the subject of claimed infringement; (2) description of the alleged infringing content and information sufficient to permit us to locate the content; (3) contact information for you, including your address, telephone number and email address; (4) a statement by you that you have a good faith belief that the content in the manner complained of is not authorized by the copyright owner, or its agent, or by the operation of any law; (5) a statement by you, signed under penalty of perjury, that the information in the notification is accurate and that you have the authority to enforce the copyrights that are claimed to be infringed; and (6) a physical or electronic signature of the copyright owner or a person authorized to act on the copyright owner’s behalf. Failure to include all of the above information may result in the delay of the processing of your complaint.

Did you know? You can invite friends and family to your search. They can join your search, rate and discuss listings with you.